居住用売買物件Sale
世田谷上町ハイム
【
中古
マンション
】最上階南東向きのため日当たり眺望良好
住友商事(株)旧分譲マンション
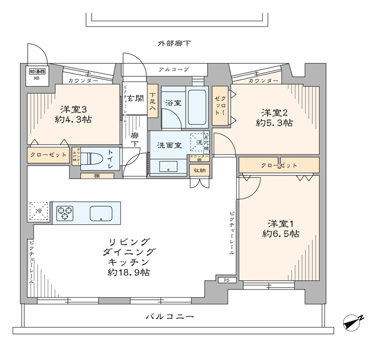
フルリノベーション済み 3LDKタイプ
| 価格 | 最寄駅 | 所在地 | 面積 | 築年月 | 間取り |
|---|---|---|---|---|---|
8380万円 | 東急世田谷線「上町」駅 徒歩 7分 | 東京都世田谷区世田谷2丁目 | 専有面積/72.86㎡ | 1996年03月 | 3 LDK |
最上階住戸・ワイドスパンバルコニーのため開放感があるお部屋です。
3LDKフルリノベーション済(工事完了)
ペット飼育可能なマンションです。
物件写真・間取り
物件概要
| 物件名 | 世田谷上町ハイム |
|---|
| 交通機関 | 東急世田谷線「上町」駅 徒歩 7分 |
|---|
| 所在地 | 東京都世田谷区世田谷2丁目 |
|---|
| 間取り | 3 LDK |
|---|
| 土地権利 | 所有権 |
|---|
| 専有面積 | 72.86㎡ |
|---|
| 建物構造 | RC |
|---|
| 階 / 階数 | 6/6 |
|---|
| 築年月 | 1996年03月 |
|---|
| 都市計画 | 市街化区域 |
|---|
| 管理費 | 12,270円 |
|---|
| 修繕積立金 | 10,430円 |
|---|
| 引渡し | 即時 |
|---|
| 情報登録日 | 2024年07月29日 |
|---|
| 情報更新日 | 2024年07月29日 |
|---|









